Kirkdene House

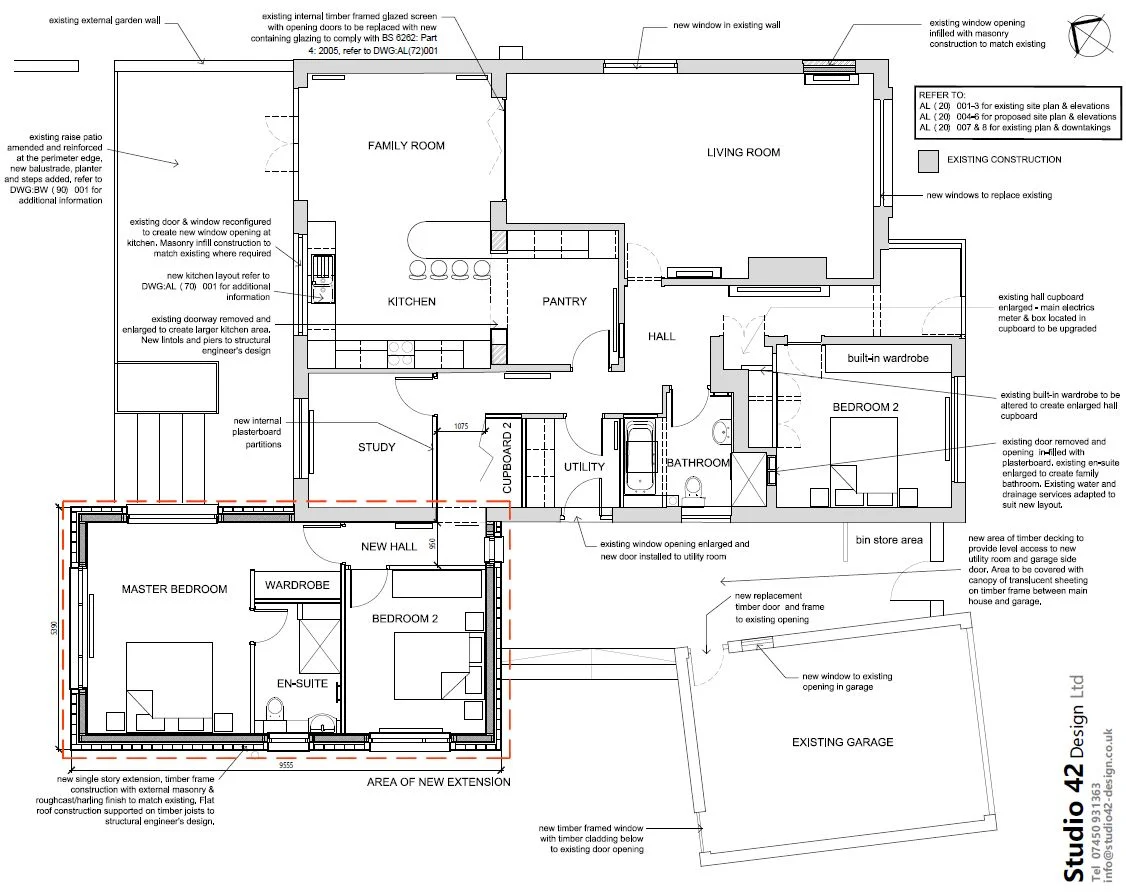
Our client had purchased a detached single story bungalow set in mature gardens in Newton Mearns to the south of Glasgow. The project was to fully refurbish internally, alter and extend the building to provide additional accommodation and remodel the interior to suit their needs, providing level access throughout the house and improved access into the garden to the rear.

The project reconfigured the internal layout to create a new side entrance accessed from the adjacent garage by a covered walkway which also led into the garden to the rear. The design included a new utility room, new family bathroom and a new pantry area leading to an open plan kitchen & family room to the rear of the original house leading out onto a rebuilt raised patio with new steps leading into the garden. The new extension housed a master bedroom with en-suit shower room, built-in storage and a third bedroom. Internally the plumbing, wiring and finishes were refurbished and upgraded throughout.